ASP21758

ASP21758
Cena: 1551 zł

Podobne oferty

KOM32952
Cena: 5500 zł
CIT01517
Cena: 60000 zł

Opis oferty

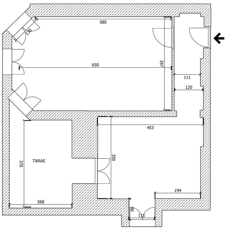
Do wynajęcia powierzchnia biurowa 47 m2 zlokalizowana na 1 piętrze budynku biurowego w doskonałej lokalizacji blisko Centrum Szczecina, w okolicy Jasnych Błoni.

Oferowana powierzchnia składa się z dwóch dużych pomieszczeń biurowych (ok. 26 i 16 m2), korytarza wewnętrznego z umywalką 5m2 oraz dużego tarasu (10 m2). Powierzchnia tarasu nie jest wliczona do powierzchni najmu.

Ściany i sufity gładzone, ozdobna tapeta i malowane, na podłogach parkiet, sufit z oświetleniem rastrowym. Toaleta wspólna z innymi najemcami (tylko kilku użytkowników, sprząta wynajmujący) czysta i zadbana.

Wysokość pomieszczeń około 3 m.

Koszt wynajmu wynosi 33 PLN netto/1 m2 (zawiera opłaty za wodę, śmieci, sprzątanie części wspólnych). Z tarasu można korzystać na wyłączność bez opłat.
Dodatkowo płatne: energia elektryczna (według wskazań podlicznika) oraz ogrzewanie gazowe (rozliczane proporcjonalnie do zajmowanej powierzchni i płatne tylko w sezonie grzewczym, indywidualna kotłownia dla budynku).

Wymagana kaucja w wysokości jednomiesięcznego czynszu najmu brutto.

Przed budynkiem znajdują się liczne ogólnodostępne miejsca parkingowe (SPP) strefa czerwona oraz kilka (5-6) miejsc parkingowych na terenie posesji do dyspozycji kilku najemców bez dodatkowych opłat.

Doskonała lokalizacja, rozpoznawalne miejsce, szybki dojazd do ścisłego Centrum. Sąsiedztwo przystanków komunikacji miejskiej.

Dane szczegółowe

Lorem ipsum dolor sit amet, consectetur adipiscing elit.

Scelerisque non vitae interdum vivamus suscipit imperdiet dolor aliquet praesent euismod eget vehicula velit pellentesque nisl ultricies eleifend aliquam mollis nibh

Inne ogłoszenia

KOM32952
Cena: 5500zł
SZCZECIN
CIT01517
Cena: 60000zł
SZCZECIN
34/11211/ODS
Cena: 1650000zł
SZCZECIN

Dodaj ogłoszenie

Lorem ipsum dolor sit amet, consectetur adipiscing elit. Ut elit tellus, luctus nec ullamcorper mattis, pulvinar dapibus leo.